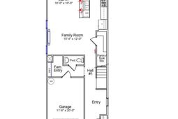
*$5000 in options or $8500 in closing cost with Silverton Mortgage and MGC Law! The Douglas floorplan is a two-story, three-bedroom, two-and-one-half-bathroom home that beautifully combines modern design with everyday comfort. Step through the front door into a bright, open-concept great room, eat-in area, and beautiful electric fireplace! A convenient powder room is tucked away just off the garage entry. Upstairs, the primary suite offers a spacious walk-in closet and a private bathroom, water closet, and linen closet. The laundry room is conveniently located just outside the primary suite, with the secondary bedrooms down the hall. Disclaimer: CMLS has not reviewed and, therefore, does not endorse vendors who may appear in listings.
Listed By
Agency Name: Clayton Properties Group Inc
Columbia SC MLS
Shown By
Agency Title: Home Advantage Realty
Agency Phone: (843) 203-5016
Columbia SC MLS
Send an email with a link to
328 Tartan Road , Hopkins, SC 29061.
Thank you for your inquiry! As a thank you, we have a Special Mortgage Offer for You.
We would like to provide you a free, no-obligation, home loan pre-approval review.
Enter your mobile number below to have the property address and page url texted to your phone.
Estimated Payment
$ 656.74 per month $580.65 Principal & Interest $0.00 Property Tax (data not provided by mls) $76.10 Homeowner's Insurance
Fill out your contact info.